物件番号 Bk40323
種目 新築戸建 価格 6,380万円
交通 甲子園駅 徒歩20分 所在地 西宮市浜甲子園1丁目
土地面積 110.54m2 ( 33.43坪 ) 建物面積 114.33m2 ( 34.58坪 )
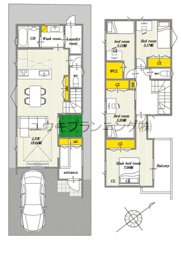
間取 4LDK 間取詳細 洋7.08、洋5.2、洋5.17、洋5.12、LDK19.8
建ぺい率 60% 容積率 200%
構造 木造 地目 宅地
土地権利 所有権 用途地域 第一種中高層住居専用地域
取引態様 仲介 築年月 R08/02
引渡時期 相談 私道面積  
国土法 不要 接道 南東 4m(幅員) 公道
学区 小学校区:南甲子園小学校
中学校区:鳴尾中学校
借地料  
特色 【浜甲子園1丁目新築戸建 B号地】南甲子園小学校、鳴尾中学校、駐車可、閑静な住宅街、充実設備。
詳細
拡大してご覧になれます
 
ローンを組むにあたり、月々の返済額をシミュレーションします。

物件価格
6,380 万円
頭金
万円
内ボーナス
万円
金利
%
借入期間
※ 毎回の返済額が開始から終了まで均等となる
    「元利均等返済」で算出しています。
※ 金利は期間中固定となる固定金利を採用しています。
※ 月々の返済額は小数点以下を繰り上げしております
※ シミュレーションでの結果は、あくまでも目安で、概算になります。
    実際にローン契約をする際は、詳細を金融機関にご確認ください。
※ 実際のローン契約時には諸費用・税金(手数料や印紙税、保証料など)が
    別途かかりますので、契約の際にご確認ください。
月々の返済額
地図
地図を右クリックでルート検索が可能です。
移動方法: 徒歩
位置情報に関するご注意:現在位置情報は精査中の為、正確ではない場合があります。あくまで参考程度の情報となります。
掲載されている物件データが現況と異なる場合は現況を優先します。