物件番号 Bk39842
種目 新築戸建 価格 5,990万円
交通 東鳴尾駅 徒歩3分
武庫川団地前駅 徒歩13分
所在地 西宮市東鳴尾町2丁目
土地面積 102.02m2 ( 30.86坪 ) 建物面積 111.1m2 ( 33.6坪 )
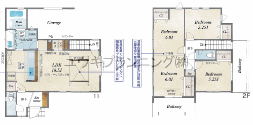
間取 4LDK 間取詳細 洋6、洋6、洋5.25、洋5.25、LDK18.5
建ぺい率 60% 容積率 200%
構造 木造 地目 宅地
土地権利 所有権 用途地域 第一種住居地域
取引態様 仲介 築年月 R08/03
引渡時期 相談 私道面積  
国土法 不要 接道 東 5.8m(幅員) 公道
北 5.8m(幅員) 公道
学区 小学校区:鳴尾小学校
中学校区:鳴尾南中学校
借地料  
特色 角地、閑静な住宅街、駐車場2台可、最寄駅まで徒歩3分。
詳細
拡大してご覧になれます
 
拡大してご覧になれます
 
ローンを組むにあたり、月々の返済額をシミュレーションします。

物件価格
5,990 万円
頭金
万円
内ボーナス
万円
金利
%
借入期間
※ 毎回の返済額が開始から終了まで均等となる
    「元利均等返済」で算出しています。
※ 金利は期間中固定となる固定金利を採用しています。
※ 月々の返済額は小数点以下を繰り上げしております
※ シミュレーションでの結果は、あくまでも目安で、概算になります。
    実際にローン契約をする際は、詳細を金融機関にご確認ください。
※ 実際のローン契約時には諸費用・税金(手数料や印紙税、保証料など)が
    別途かかりますので、契約の際にご確認ください。
月々の返済額
地図
地図を右クリックでルート検索が可能です。
移動方法: 徒歩
位置情報に関するご注意:現在位置情報は精査中の為、正確ではない場合があります。あくまで参考程度の情報となります。
掲載されている物件データが現況と異なる場合は現況を優先します。