|
新築戸建
[価格]
5,990万円
|
||||
|---|---|---|---|---|
| 所在地 | 沿線/駅 バス徒歩 |
構造 間取 |
土地面積 建物面積 |
築年月 引渡時期 |
| 西宮市東鳴尾町2丁目 | 阪神武庫川線/東鳴尾駅 徒歩3分 |
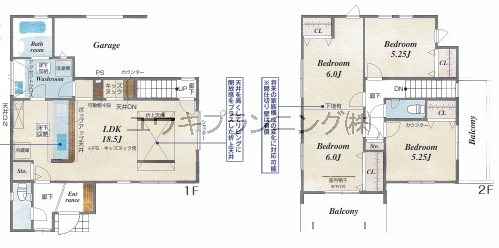
木造 4LDK |
101.44m² 111.1m² |
2026/03 相談 |

| 物件番号 | 39842 | ||
|---|---|---|---|
| 交通 | 阪神武庫川線 東鳴尾駅 徒歩3分
阪神武庫川線 武庫川団地前駅 徒歩13分 |
学区 | 鳴尾小学校 鳴尾南中学校 |
| 建ぺい率 | 60% | 容積率 | 200% |
| 地目 | 宅地 | 用途地域 | 第一種住居地域 |
| 間取詳細 | 洋6、洋6、洋5.25、洋5.25、LDK18.5 | 取引態様 | 仲介 |
| 土地権利 | 所有権 | 借地料 | - |
| 諸費用 | 私道面積 | - | |
| 接道 | 東 5.8m(幅員) 公道 北 5.8m(幅員) 公道 |
セットバック | |
| 特色 | 角地、閑静な住宅街、駐車場2台可、最寄駅まで徒歩3分。 | ||
|
地図を右クリックでルート検索が可能です。
|